Via Matteotti 66 - Solbiate Arno (VA)
Porzione di Casa Terra / Cielo in vendita a Cuasso al Monte
Cuasso al Monte
Zona: - via Roma, 18
€ 280.000
#300 mq
#5
#4

Porzione di Casa Terra / Cielo in vendita a Cuasso al Monte
via Roma, 18

Descrizione
Cod. AIRO
€ 280.000

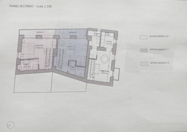
Vicino al centro di Cuasso al Monte, proponiamo in Vendita porzione di casa terra cielo da rifinire, libera su tre lati e disposta su tre livelli per un totale di circa 300 mq, già predisposta per la realizzazione di quattro appartamenti oltre grande giardino / piazzale. La stessa, con facciate in caratteristico sasso e due balconi con vista aperta, risulta già restaurata nel tetto con travi storiche ripristinate e nelle solette rinforzate in cemento armato, pur mantenendo i caratteristici solai in legno a vista. Il progetto è impostato per la realizzazione di un ampio trilocale al piano terra oltre tre comodi bilocali disposti su due livelli. Completa la soluzione un'ampia area di proprietà / giardino di circa 250 mq fronte l'immobile, dov'è possibile ricavare autorimesse / posti auto. Ideale come investimento. DA VEDERE!!!

Classe energetica: NA - Non Applicabile
Caratteristiche
Scopri le caratteristiche di questo immobile
Nelle vicinanze
Servizi e infrastrutture della zona
Ubicazione immobile
Porzione di Casa Terra / Cielo in Vendita
Cuasso al Monte
via Roma, 18
€ 280.000
icon

300

mq
icon

5

Camere
icon

4

Bagni
Contattaci
Porzione di Casa Terra / Cielo in vendita a Cuasso al Monte
Piazza Affari Immobiliare

P.IVA: 04050070129

Ultimo aggiornamento 20/11/2025
×
Codice
Contratto
Scegli dove cercare
Tipologia - multiscelta
Prezzo


Totale mq


Locali minimi
Bagni minimi
Camere minime
Altre opzioni - multiscelta